ENGLISH
ホーム
Suomi Koti について
製 品
スタイル&デサイン
技術情報
なせ木造建築?
お問合せ
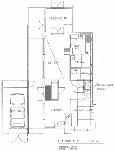
Suomi-Koti モデル・ハウスB
我々の仙台モデルハウスは現在計画中であります。このプロジェクトの為に建設会社およびパートナーを探しております。
詳しくは
こちらまでご連絡
くださるようお願いいたします。
© KIMMO KUISMANEN ARCHITECTS
© 2014 :: Suomi-Koti ::
All rights Reserved